Bučna vas – vzhod/1

Za naročnika Grading - Kurent, d.o.o. izdelujemo izvedbeni prostorski akt na območju Bučne vasi v Novem mestu.

V sredo 7. januarja 2015 je bila v sejni dvorani Mestne občine Novo mesto, Glavni trg 7 (Rotovž) predstavitev in javna obravnava dopolnjenega osnutka občinskega podrobnega prostorskega načrta Bučna vas – vzhod/1.

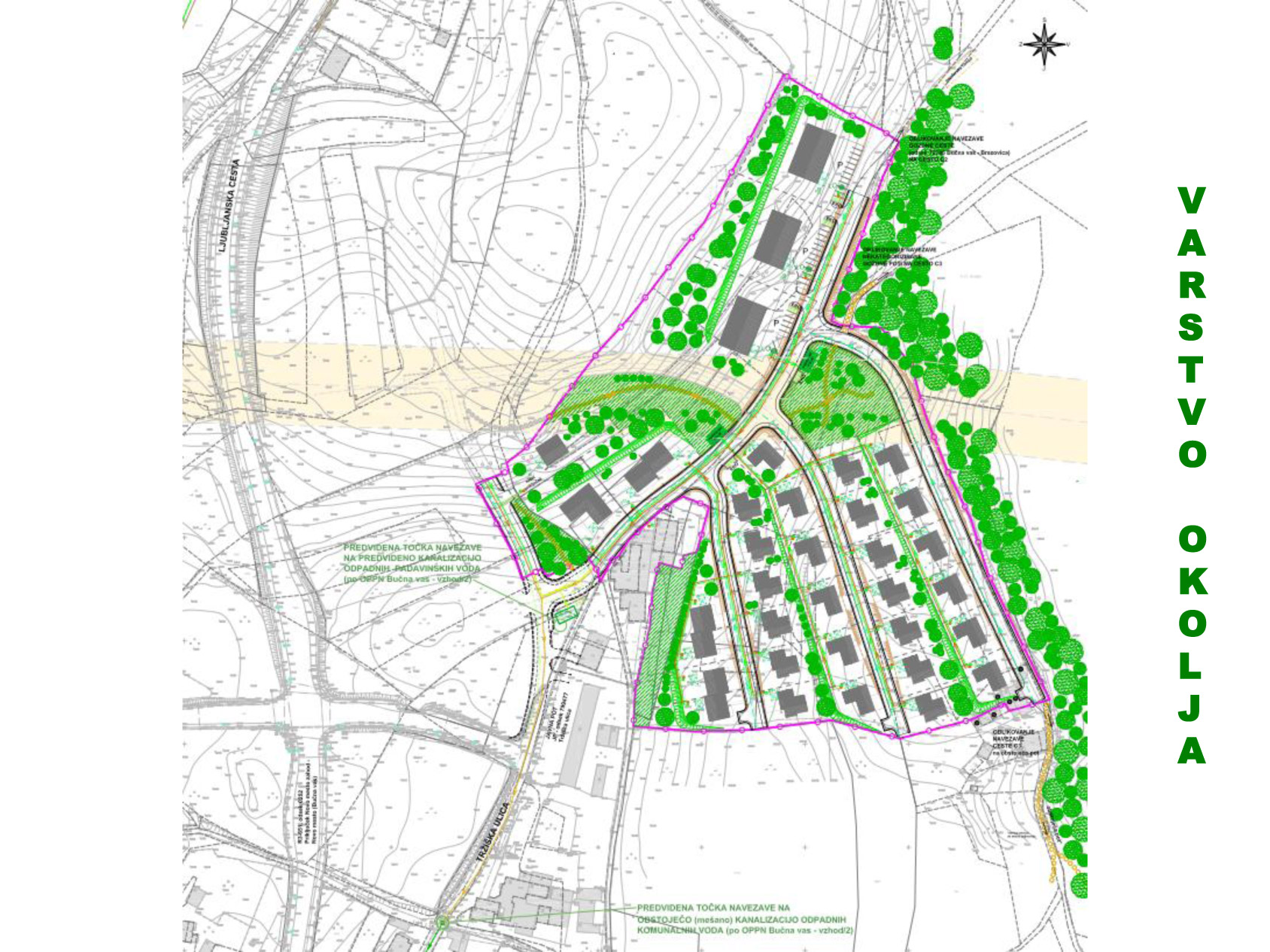
Območje urejanja je namenjeno bivanju z možnostjo opravljanja spremljajočih dejavnosti. Poleg novih stanovanjskih stavb in urejenih zelenih površin se zgradi tudi vsa pripadajoča prometna ter ostala infrastruktura.

  Prenesite si PDF datoteko "Občinski podrobni prostorski načrt"

  Prenesite si PDF datoteko "Ureditvena situacija"

  Prenesite si PDF datoteko "Načrt infrastrukture"